Willkommen in Velden am Wörthersee
Wohnen nur wenige Schritte vom See in ruhiger Bestlage
Beschreibung Projekt Seeklang
Das Grundstück befindet sich in der Bäckerteichstraße 3 in Velden am Wörthersee. Die Liegenschafft fasst 1318 m² und ist nur wenige Schritte vom Wörthersee entfernt. Auch das Casino Velden sowie das Hotel Falkensteiner sind in etwa 5 Minuten zu Fuß erreichbar.
Exklusive Wohnungen & Häuser am Wörthersee in ruhiger Lage von Velden.
✔ Haus 1 Bestandswohnungen
✔ Haus 2 Wohn-Geschäftshaus
✔ Haus 3 Bungalow
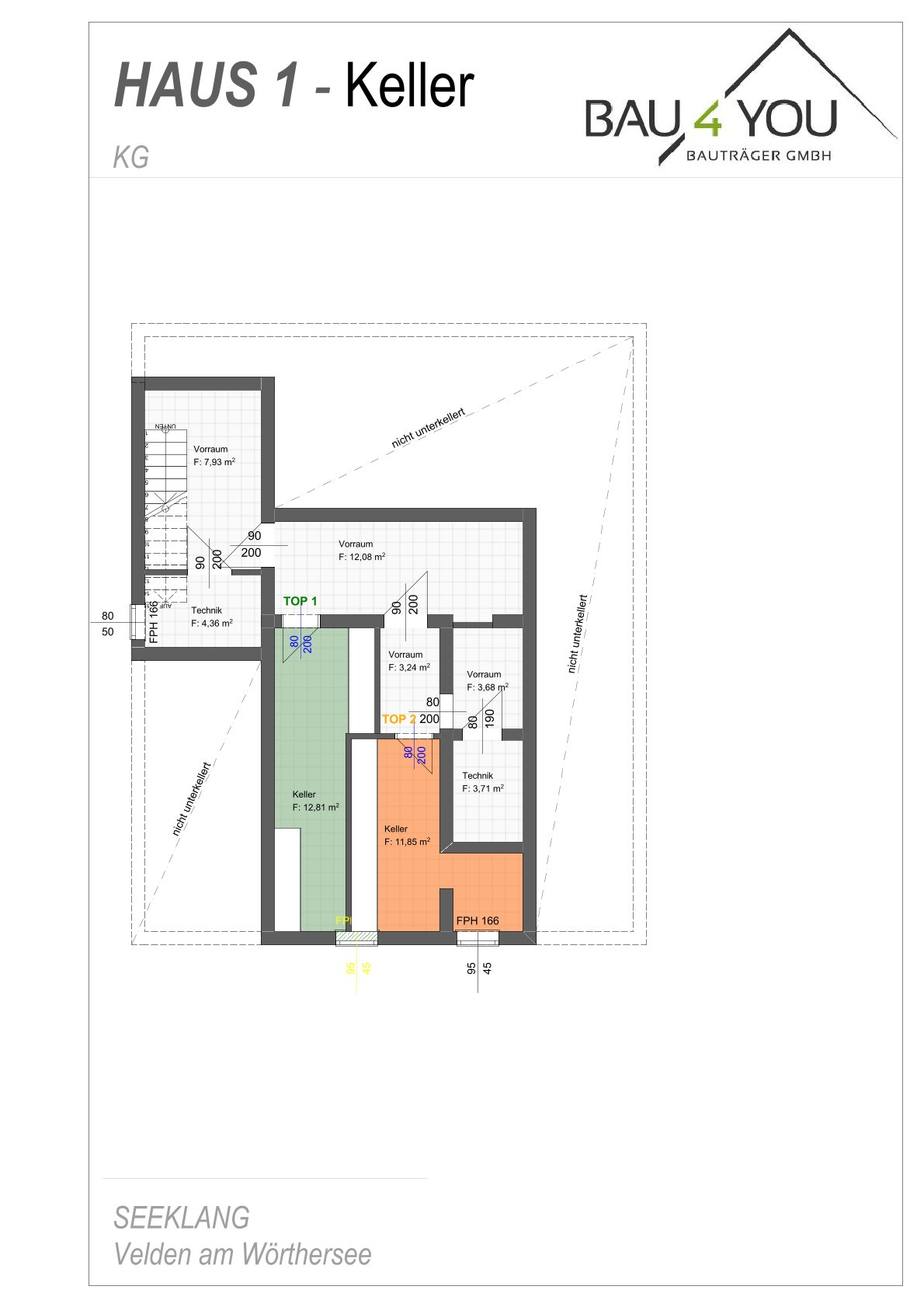
Das Bestandsgebäude - Haus 1 - besteht aus TOP 1 & TOP 2. Diese Einheiten können jeweils angekauft werden
oder auch gemietet werden.
Ergänzend dazu entstehen zwei weitere Neubauprojekte Haus 2 und Haus 3:
Haus 2 - An der Bäckerteichstraße wird ein Wohn- und Geschäftshaus errichtet.
TOP 1 mit 68m2 im EG und TOP 2 mit 63m2 im OG
Die zugehörige Grundstücksfläche für TOP 1 beträgt ca. 395 m² davon knapp 137m² Garten.
Diese Fläche kann auch ohne Hausbau angekauft werden.
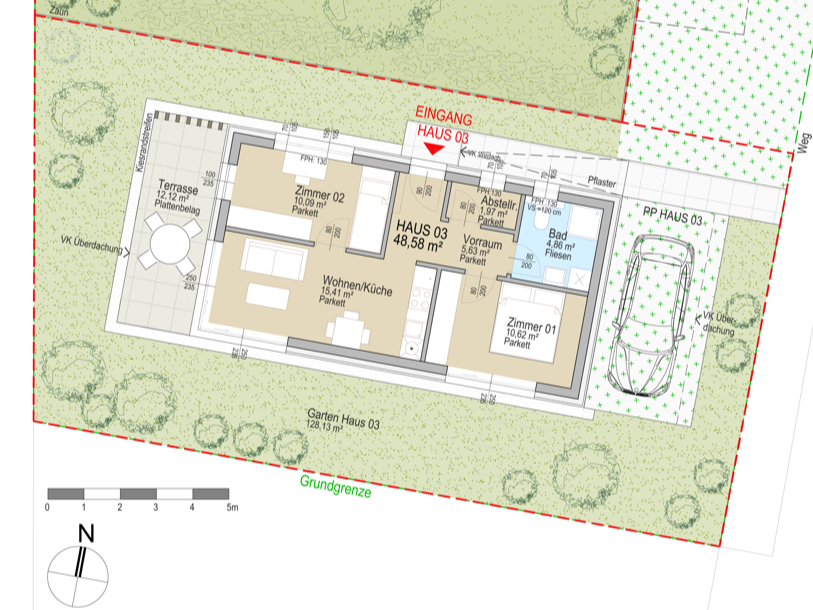
Haus 3 - Auf der Südseite des Grundstücks entsteht ein Bungalow mit ca. 50 m² Wohnnutzfläche
und einer Gartenfläche von 128m².
Das Grundstück selbst hat ca. 229 m², diese Fläche kann auch ohne Hausbau angekauft
werden.
Alle Einheiten sind via Nutzwertgutachten parifiziert.
Für dieses Projekt ist Hr. Daniel Schwarzmann zuständig: 0664 75005991
Bungalow - Haus 3 - Ansicht Südseite
Der eingeschossige Bungalow (Haus 3) bietet auf ca. 50 m² Wohnnutzfläche ein durchdachtes Raumkonzept für entspanntes, barrierearmes Wohnen auf einer Ebene. Große Glasflächen sorgen für freundliche, lichtdurchflutete Räume und schaffen einen fließenden Übergang von Wohnen & Küche zur sonnigen Terrasse und dem privaten Garten.
Der Grundriss umfasst:
- einen offenen Wohn- und Küchenbereich mit direktem Terrassenzugang
- zwei Zimmer, ideal als Schlaf-, Kinder- oder Arbeitszimmer
- ein Badezimmer sowie einen zentralen Vorraum mit Stauraum
Ausstattung = belagsfertig, d.h. bis auf Türen, Wand-, Decken- und Bodenbeläge alles fertig.
Belagsfertig ist die Vorstufe zum Schlüsselfertighaus.
Wohn- Geschäftshaus - Haus 2 - Ansicht Bäckerteichstraße 3
Haus 2 kombiniert attraktive Geschäftsflächen im Erdgeschoss mit großzügigem Wohnen im Obergeschoss – ideal für Selbständige, Praxis, Büro oder Kanzlei in bester Velden-Lage.
Erdgeschoss – Gewerbe (TOP 1 | ca. 68,24 m²) oder wenn gewünscht Wohnung
Vielseitig nutzbare Geschäftsfläche mit mehreren Räumen, Sanitärbereichen, Lager und separatem Straßenzugang. Direkt angeschlossene Terrasse mit ca. 35 m² – bestens geeignet für Kundenempfang oder Pausenbereich.
Obergeschoss – Wohnen (TOP 2 | ca. 63,10 m²)
Helle 3-Zimmer-Wohnung mit großzügigem Wohnzimmer, separater Küche, Bad, WC, zentralem Vorraum sowie Balkon & Terrasse für entspannte Stunden im Freien.
Ausstattungsbeschreibung für TOP 1 und TOP 2 = belagsfertig. Fertigstellung auf schlüsselfertig gegen Aufpreis möglich.
D.h. Grundsätzlich bedeutet belagsfertig, dass alles erledigt wurde – bis auf Wand-, Decken- und Bodenbeläge, die nun vom Bauherrn auf die vorbereiteten Untergründe aufgetragen werden. Belagsfertig ist sozusagen die Vorstufe zum Schlüsselfertighaus.
Bestandshaus - Haus 1 - 2 Wohnungen (EG mit Eigengarten +OG)
Verkauf und/oder Vermietung oder Kaufmiete (siehe Verkauf-Miete-Preise)
- Modernes Badezimmer mit Fenster, Dusche & WC
- Separates Gäste-WC
- Wohn- & Essbereich mit ca. 44 m² und Terrassenzugang
Ein perfektes Zuhause für Familien oder alle, die Raum, Ruhe und einen eigenen Garten schätzen.
Die Obergeschosswohnung überzeugt mit luftiger Atmosphäre und sonniger Außenfläche:
- Badezimmer mit Fenster, Dusche & WC
- Separates Gäste-WC
- Wohn- & Essbereich mit ca. 28 m²
- Separate Küche mit ca. 8,3 m²
- Überdachte Terrasse mit ca. 14 m²
Ausstattung & Fertigstellung
- Belagsfertige und schlüsselfertige Ausführung inkl. Küche im OG
- die Preise beziehen sich auf den IST-Stand der Ausstattung
- Fertigstellung und Übergabe 1 Monat nach Kauf
- beide Wohnungen könnten auch bezugsfertig (inkl. Einrichtungsgegenstände) übernommen werden
Vermietung:
Die Wohnungen können auch einzeln gemietet werden, Preis je Wohnung € 1.500, gesamtes Haus € 2.900 jeweils kalt
Hinweis: Visualisierungen dienen als Symbolbilder und zeigen mögliche Gestaltungsvorschläge.
Lageplan gesamtes Grundstück
Modernes Wohnen mit Stil – Wohnen im Einklang mit der Natur
Für weitere Informationen können Sie uns gerne eine E-Mail an admin@bau4you.biz senden.
Oder Sie rufen uns ganz einfach unter +43 676 826 185 00 an.
Der Kaufpreis für das gesamte Grundstück mit 1318 m2 inkl. aktuellem Bestand (Zwei Familienhaus) liegt bei EUR 1.390.000,- (inkl. Grundstücksanteile mit Baugenehmigung für Bungalow Haus3 und Wohn- und Geschäftshaus Haus 2)
Der Wörthersee ist in nur wenigen Minuten zu Fuß erreichbar.
Das Projekt umfasst:
- zwei großzügige Wohnungen im Bestandsgebäude
- ein Wohn- und Geschäftshaus
- einen charmanten Bungalow mit Garten
Die Kombination aus Lage, Architektur und Lebensqualität macht dieses Projekt zu einer besonders attraktiven Wohnadresse am Wörthersee.
Die Liegenschaft liegt zentral und glänzt gleichzeitig durch ihre Ruhelage.






